每个城市的中心,都有一座广场。北京的天安门广场,上海的人民广场,它们是城市的0公里起点,
是国旗升起的地方。
在福州,这个地方叫五一广场。
福州不能没有五一广场,就像西方不能没有耶路撒冷。每个福州人的相册里,都藏着一座五一广场。它记录着福州的故事,承载着福州人的集体记忆。
广场前的伟人雕塑巍峨伫立,见证着时代变迁。
詹姆斯.希尔顿说,每个人心中,都有一个香格里拉。但所有福州人心中,只有同一个香格里拉:
五一广场边上的那个。
2005年,五一广场西侧,福州第一家国际五星级酒店香格里拉落成开业,重新定义了福州的酒店标准。
由日本KKS主创的建筑方案,简洁优雅的立面线条,玻璃幕墙在夕阳下熠熠生辉,让福州人第一次知道了什么叫国际范儿。
在很长的时间里,香格里拉都是福州的地标之一。
香格里拉酒店集团的话事人,马来西亚首富郭鹤年,祖籍福州。
在福州的中心,香格里拉,第一次,把世界带回故乡。
17年后,在五一广场的另一侧,老地标香格里拉,终于有了新伙伴;
阳光城的豪宅项目,龍庭路95號。
Chapter 1
鼓楼中心改善的三次机会
在福州,很多新区的核心竞争力,归根结底可以提炼成:
离鼓楼近。
福州历史上的7.4km²古城,全部在鼓楼范围内。
鼓楼是全省的政经中心,是福建的全省第一区:
无论是权力中心的华林路、乌山路,还是经济中心的湖东路、五四路,或是全省最好的几所医院、全市最好的几所小学,众多的机关、国企、民企、事业单位,都扎堆在几公里鼓楼核心区里。
资源密度是福州难以动摇的第一,高到打着望远镜也看不到第二。
一直是核心,仍然是核心。
鼓楼区有多牛呢?
人均GDP是31万。这个数字是全国第八。什么概念?
人人以搞钱闻名的深圳,全市的人均GDP,不到18万。
福州人的鼓楼情节,由此而来。鼓楼之外,皆为郊区。
福州的精英人群,离不开鼓楼。在鼓楼碰到三个人,就有一个是厅局级穿搭。
鼓楼不缺钱,不缺人,但,太缺地了。
仅占全城面积3%的土地占比,还要减去7.4km²的古城,0.5km²的西湖,96个重点文保单位,加上建国以来的无数省市机关、企事业单位,商圈、公园、水域、林地、耕地、交通运输用地。
人口占全市的20%,土地面积却仅占全市的3%。
在鼓楼多数建筑还是低密度的前提下,人口密度是2万人/平方公里。对这个数字没有概念?再给一个对比,全国人均GDP第一的深圳南山区,人口密度还不到1万人/平方公里。
住宅用地,寸土寸金。
因此,鼓楼住宅用地出让极少,就像王母娘娘的蟠桃,三千年一开花,三千年一结果。历年难得的出让,也大多是由旧改而来;
成熟区域的城市更新,几乎都混合着原拆原建的安商房。
连原先相对边缘的江滨和西区板块,也已经被三十年的开发占满。几乎100%的城市建成区,意味着新供地块的机会非常小。
要满足核心区、纯商居住、大户型产品这几个条件的地,更是凤毛麟角:
十年来,只有三次机会。而这三次机会,两次已经过去了。
土地本身并不值钱,值钱的是叠加其上的城市资源,真金白银的天量投入。
地价,代表了土地出让方对这块地的估值,代表了地块上叠加的资源价值。
阳光城在2016年拍下的这块地,实际可售商品房楼面价高达4万7;
福州历史上的单价地王。
原因一句话就能说清:距离五一广场1km。
鲁迅说,人类的悲欢并不共通。当你在肝ppt时,阿拉斯加的鳕鱼正跃出水面;你堆excel时,西藏的山鹰正在云端盘旋。
同一个城市,对每个人展现的样子也各不相同:
住在金山的人,得到的是风景优美空气好;
住在东二环的人,得到的是商业氛围和城市浓度;
住在马尾和闽侯,得到的是高峰期进城通勤一小时,来不及打卡的苦涩。
一千个人福州人眼里,有一千个福州。城市对每个人展现的模样,取决于居住地周边的3km。
广义的福州在地图里,在新闻里;真实的,可碰触的福州,在这方圆3km里。龍庭路95號周边的3km内,围绕着的是福州建国以来70年的发展成果,以最高密度汇集的城市资源。
看不上这个地段,就是看不上福州这座城市了。
地王就像耀眼的命运:有些房企选择避而不直视它,而另一些房企则选择像贝多芬一样,扼住它,驾驭它。
地王豪宅项目,是房企的雄心、技艺、开发水平的最集中的展示,就像F1赛事,是汽车工业技术的最高舞台。
拿没拿过地王,做没做过豪宅,是房企开发水平的重要衡量标准。
一句话可以描述这块地:
这是全省最牛的区里,最贵的地。
这是阳光城时隔8年后,在福州中轴线五一路上拿的第二块地王。
2008年5月6日,阳光城以每亩千万元拿下五一路高价地,即后来很多年的鼓楼第一豪宅,白金瀚宫。
在福州均价7千的2008年,白金瀚宫开盘价格超过2万。仅228户的白金瀚宫,现在二手房的挂牌价是:
9万。
八年之后,阳光城重回五一路。
Chapter 2
按照艺术品的规格
福州的开发商通病一:不重视总图。
总图代表项目的开发水平和审美标准,代表了对市场的判断,对客群的研究,对竞争力的侧重,是前期工作成果的总和。
总图就是产值,总图就是生活方式。
但是在福州,不管楼栋多少,容积率高低,兵营式的阵列排布往往是最终呈现的唯一方案;
什么审美要求、客户体验,统统给“货值最大化”让路。
比如下面的这张总图的平庸化定稿。
在龍庭路项目上,这是一张费尽思量的总图,图上是设计部门无数不眠不休的夜晚;
这块地包含了安商房分区和东南角的独立商品房分区,项目整体总图从最初的高低配,到最终的全高层,和规划局一共沟通了十多次过程稿才定下来。
但在商品房分区总图上,阳光城的一位领导发出了他的灵魂之问:
这么好的一块地,这样简单的两排高层排布,难道这就是福州10万+的豪宅吗?这就是属于福州当下和未来的经典吗?
显然,方案还可以有更好的,精益求精的可能。
翻译:重做。
领导表示,对项目的研究、天赋的挖掘、价值的梳理,每周必须汇报一次,要
按照艺术品的规格打造这个项目。
设计部门的员工,把刚搬走的睡袋,又搬回了办公室。
又是无数个不眠不休的夜晚之后,总图终于定稿;“福州之门”的双塔造型,售楼处移至南面,形成视觉上的双地标。
为了打造艺术品规格的项目,阳光城请来了两个最适合这块城市更新地块的大师团队:
如恩设计和梁建国工作室。他们同样擅长
将现代手法和工艺,融入历史和传统。
项目的售楼处和塔楼主体,同样令人惊艳。
在如恩的故事线里,售楼处是一座具备崭新建筑建构的城市文物;
售楼处的外形设计灵感来源于1871年,英国摄影师John Thomson的作品《岛塔》:
镜头里的福州金山寺静静地栖息于河流中的浮石之上。
金山寺在福州历史中的文化角色带领如恩延展至福州的海洋文化,在最终的设计中,建筑外围引入了水池,既填补了场地,又倒映出了建筑,营造出临近水域的感觉。这座拥有红宝石外观的售楼处,名为:
福州茶馆。
连绵山丘般的红铜屋顶和夯砼墙体环抱着的,是一栋完整的,三进式的木质结构清朝古宅。
木质结构位于整个建筑的中心,周围环绕着夯砼结构,铜制屋顶架于墙体之上,与室内木结构的屋顶线相呼应。整栋建筑就像在保护这座古宅。
这座徽派建筑的主人,曾官至布政司,正二品,
相当于今日的副国级干部。
难以想象项目团队费了多少周折,才把这座位于江西的老宅,完整地搬运到福州,并将它一一复原。
楼栋的主体立面颜值同样惊艳。参照新加坡金沙酒店的双星设计,“福州之门”的双塔建筑造型,使用银灰色铝板+low e中空玻璃,在全福州都是最具视觉辨识度的地标之一。呼应着五一广场另一侧的地标香格里拉,就像黑夜中的萤火虫,那样的鲜明,那样的出众。
when old meets new,鼓楼有了新地标。世界和故乡,都在这里。
Chapter 3
其实你不懂我的心
户型面积的总额是固定的,分配就是零和博弈。
餐厨、客厅、房间数量、主卧配置、卫生间数量,包括过道,都需要占据面积。面积的分配和设计,体现家庭关系和生活方式。
产品体现什么样的生活方式,谁来使用这种生活方式?这是产品设计首先要回答的问题。
但在高周转的年代,这个问题往往让步于
什么时候可以出设计稿?
福州开发商的通病2:用做改善的思路做豪宅。比如下面的几个案例。
户型1,空间给了客厅,充分利用了第四代住宅的阳台赠送,得到了一个非常开阔的公区,第一眼非常打动人;
但对立面形态的追求,造成了户型横向面宽的狭窄,对功能性又有要求,所以做了四个房间,包括3个带独立卫生间的套房。这就得到一个结果:
每个房间都很小。
二胎甚至三胎家庭,每个孩子都有自己的房间,也有宽阔的活动场地,但就委屈了男女主人:
240的户型,主卧竟然没有独立的衣帽间,卫生间接近暗卫。
户型2,把适合120-140平的溏心户型用到240平上,空间布局是140的肥胖版;
同样由于对立面形态的追求,每个卧室的开窗面极小,三个小房间的开窗面加起来,都凑不齐一面完整的落地窗。主卧竟然还和客厅的阳台联通,隐私一览无余,在240的面积段上,这显然是对主卧的不尊重。
户型3,200平的面积,实际体验可能甚至比不上100平。
如同宿舍般布局了5个房间,4个卫生间,加上过道的浪费,每个房间的使用面积非常紧张,中间两个房间和户型2一样需要牺牲隐私共享阳台。
需要5个房间才能装下的一大家子人,婆媳、父子、三代人,每对需要特别小心相处的关系,却都挤在近在咫尺的分区里。
住在这个户型里,和睡在炸药库没有区别。这个户型需要家庭成员具备极高的情商,才能保持家庭和睦。
可能是老一辈福建人喜欢多子多福的观念深入开发商心,几乎所有的开发商,都舍不得把房间数做少。
但他们都忽略了一个真理:
家庭和睦的关键点,是不要和父母住在一起。
一碗汤的距离是刚刚好,一扇门的距离,就考验情商了。
实际上,对于孩子已经上大学/工作离家,父母不同住的人群,或是事业上升阶段,工作与生活密不可分的年轻新贵,并不需要那么多房间;
但需要足够多的社交场景、独处空间,和足够犒赏自己的奢阔主卧。
光说主卧一项,不低于50平的面积,是洲际/瑞吉/康莱德等国际五星级酒店的正常行政房标准。而全福州,面积250平以内,主卧超过50平的产品,几乎没有。
很多开发商的房子卖不掉,与此同时,也有很多人买不到适合的房子。
特别是那些现在已经住在200平+的房子里的人;
在家里,居然住得还没有出差时舒适。
Chapter 4
只有偏执狂才能生存
正如安迪.格鲁夫所说,偏执狂才能生存,CEO注定孤独。总裁就像广场舞之外独自solo的大爷,每天睁开眼,家里、公司、单位,周围都是要依靠他的人,却找不到他可以依靠的人。
甚至,找不到可以理解他的人。
在对居所的要求上,也一样。那些做惯了120-140改善产品的客研和设计师,把豪宅做成肥胖版改善产品,用的是老农一样的思路:皇帝种田总得用个金锄头吧。他们难以想象:世上居然有人可以不种田。
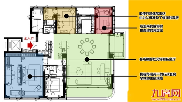
所幸,龍庭路95號的第一产品经理,是大领导:我懂你们,因为我和你们是同一类人。他按照自己对生活方式的理解,为福州的同一类人定制了这样的产品:为福州的总裁们量身打造的项目。283平户型,只做了实际意义上的3房。
基于目标人群的需求,产品是一步步推导出来的:
首先是符合总裁身份的主卧规格:近60平的行政级套房,包含了
1、并列的男女主人独立衣帽间,足以装下男女主人所有身份角色的衣着装备
2、行政套房才配备的双台盆+三分离卫浴系统
3、将城景尽收眼底的星空浴缸
4、全落地窗前的阅读/休闲/共工作台
5、配置床尾阅读沙发的kingsize大床
这是携程上每晚两千才能订到的五星级行政套房体验。
这样的主卧,是总裁肉体的香格里拉,心灵的拔火罐,是精神与时间的小屋。在这里度过一个沉静而深邃的夜晚,来忘掉错对,来怀念过去,共度患难日子总有乐趣。再难的事,再累的心,第二天又是满血满蓝,整个福州城,再没有总裁办不了的事。然后是配备了全景落地窗,开窗面达到16m,会所级别的社交场景:
1、配置了户外区域的中西厨+岛台
2、八人大圆桌
3、酒吧台
4、三个相互独立的休闲区
5、两个直面五千平中庭景观的户外交流区
不管是华服霓裳的觥筹交错局,还是返璞归真的友情岁月局,这样的社交厅堂,都能为总裁hold住。
会所+豪华套房,是这套房子的基本盘功能。
在满足基本盘的基础上,为父母和已经离家的孩子的偶尔来访,又设计了两个带卫生间的套房,面积控制得体面而恰到好处。当然,这两个房间也可以作为男女主人其中一方应酬晚归时,不打扰另一半的临时卧室。即使逢年过节,全家人聚在一起,这套房子也住得下。在入口处,还保留了一个司机/保姆区。
这是全福州都找不到的,为离不开鼓楼的总裁们量身定做的产品。
室内设计来自梁建国工作室,将福州的山水、茉莉花、福橘元素融入室内设计,材质、工艺、色彩上则是精致奢华;连主卧的背景墙,都是由皮质艺术壁纸、琉璃、纯铜和艺术金漆,经特殊工艺手工拼接出茉莉元素,每一块都是独一无二的手工艺品。这个层次的产品,配置上自然是毋庸置疑的国际级,嘉格纳、杜拉维特、高仪、大金,连不显眼的橱柜,用的都是德国柏丽的整体定制。值得一提的是,福州冷的时候,每年可能只有一个月左右。但就为了这一个月的舒适,龍庭路95號配置了福州仅见的全屋地暖。
在很多小区,尤其是鼓楼的小区,或许在室内,你可以按照自己的想法打造理想居所,但走出门外,老旧的公共空间,破败的景观,都想让你只想躲回屋内;但在龍庭路95號,阳光城希望你多出来走走:在仅两栋楼的小区里,龍庭路95號准备了总面积五千平的景观庭院:六个花园。在这里,没有一寸公摊是浪费的。
在每个花园组团里,都有丰富的林下空间:孩子们的爬架和秋千,树荫下随处可见休闲座椅,在孩子们玩耍的时候,家长们随时可以坐下来,和邻居们聊聊天。景观与一楼架空层之间做了互相渗透的设计,模糊了户内和户外的界限。室内和室外不再那么泾渭分明。和以往「只能看」的景观不同,龍庭路95號的景观设计,在好看的同时,鼓励人们参与到「使用」景观的过程中来,去体验植物、阳光和微风。当然,作为一个只有88户业主的高净值社区,在这样的景观里,邻居们当然更愿意多聊聊。
龍庭路95號,可能拥有全福州最具仪式感的入户:首先是这个独立于两栋塔楼的入户门头;宽达65米,可能是福州最大的门头挑檐。
以及(可能是)全福州最高的4米4石材+古铜材质围墙,将墙内的一切围合在红线内,划为项目的88位业主私享。然后是架空层的终极形态:会所入户。
入户礼遇的鄙视链上,从没有架空层,依次到有架空层-架空层有主题和功能-架空层有接待台-架空层有接待台和会客区。
再到龍庭路95號的标准:架空层和五星级酒店一样,拥有完整的接待区-大堂吧-餐厅-休闲区。
用会所,作为入户的方式。
由于土地出让的条件限制,以及运营会所的成本、难度等客观条件限制,能够设置会所的小区越来越少,
甚至哪怕是豪宅项目。
在福州,更是如此:设有会所的小区寥寥无几,能够运营得当的,几乎没有。但对于对生活品质和服务质量要求都更苛刻的高净值人群,社区有没有一个体面的、能够在红线之内就满足很多居住、休闲和社交需求的会所,是重要的考量标准。换而言之,有没有会所,是衡量豪宅品质的重要标准。
龍庭路95號没有在这方面让人失望。项目团队对标并实地考察了古北壹号、梵悦108、深圳湾一号等国内一线豪宅之后,在一楼架空层会所设置了咖啡吧、茶室、书吧、童玩空间、棋牌室、私宴厅和私董会等7个主要的功能模块,总面积达到2500平方米。会所的室内部分同样由梁建国团队操刀,单方成本惊人。要知道,梁建国团队的成名作品是:
故宫紫禁书院。
当然,负一层也是同样的标准。在功能设置上,负一层给了健康和休闲:包括一个25米的恒温泳池,以及一个专业级别的健身房。
加上户外的景观区域,龍庭路95號为88和业主一共打造了9个公共客厅、18个场景。
除了产权是住宅的,这分明就是个能玩一整天的五星级度假酒店。
回家就是度假的开始,这句话在龍庭路95號,可能是真的。五星级的体验,落在每一个细节上:
项目不但在地面以水景、雕塑和手工雕刻的玉石景墙打造了足够五行的酒店式落客区,就连地下车库的归家大堂,也是同样的标准:
12.5米宽的吊顶,云石材质,在灯光的映照下,温暖剔透。
连地下车库大堂的等候区座椅,都由一整块通体晶莹的琉璃手工打造而成。
除了令人赞叹的硬件预留之外,软件也做了适配。项目的物业服务标准是接轨五星级酒店和服务式公寓;
做业主24小时在线的生活秘书。无论室内室外,龍庭路95號都致力于提供一种福州前所未有的,五星酒店般的居住体验和服务体验。福州不缺大户型,但缺能够真正意义上改变高净值人群生活方式的CEO盘。现在,有了。当你看到这篇文章的时候,龍庭路95號的售楼处和展示区已经实景呈现。离不开鼓楼的总裁们,是时候去福州茶馆喝茶了。
















































闽公网安备 35020302035470号
最新评论