嘉里樟岚项目(地块五-4)位于福州市仓山区南江滨东大道榕城·江上图,于2019年8月取得《建设工程规划许可证》。现建设单位盛泰置业(福州)有限公司向我局提交方案变更申请,拟将地下室充电桩车位布置进行优化调整。以上调整地下室机动车数量保持不变。具体调整详见附件。
现根据《福建省实施〈中华人民共和国城乡规划法〉办法》规定,征求利害关系人意见,详情可查阅市自然资源和规划局网站(http:// zygh.fuzhou.gov.cn),公示时间为2021年8月31日至2021年9月8日。
在公示期限内,利害关系人若有意见,可来电或来信向我局行政审批处反映(联系电话:87111956,地址:市行政服务中心二楼)。如要申请听证,应在公示期限内书面向我局法规处提出申请(联系电话:83310951)。自然资源和规划局办公地点:福州市仓山区南江滨西大道193号4号楼5层福州市自然资源和规划局,邮编:350500。
附注:
1.附图仅为示意图,以最后审批为准。
2.书面反馈意见(申请)发表时间或邮戳日不应超过公示期的最后一天24:00,逾期视为无效意见(申请)。
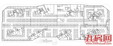
附件一:嘉里樟岚项目(地块五-4)项目原批地下室一层平面图
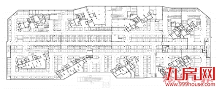
附件二:嘉里樟岚项目(地块五-4)项目拟调整地下室一层平面图
附件三:嘉里樟岚项目(地块五-4)项目原批地下室二层平面图
附件四:嘉里樟岚项目(地块五-4)项目拟调整地下室二层平面图
福州市自然资源和规划局
2021年8月30日
附件一:嘉里樟岚项目(地块五-4)项目原批地下室一层平面图
附件二:嘉里樟岚项目(地块五-4)项目拟调整地下室一层平面图
附件三:嘉里樟岚项目(地块五-4)项目原批地下室二层平面图
附件四:嘉里樟岚项目(地块五-4)项目拟调整地下室二层平面图












闽公网安备 35020302035470号
最新评论