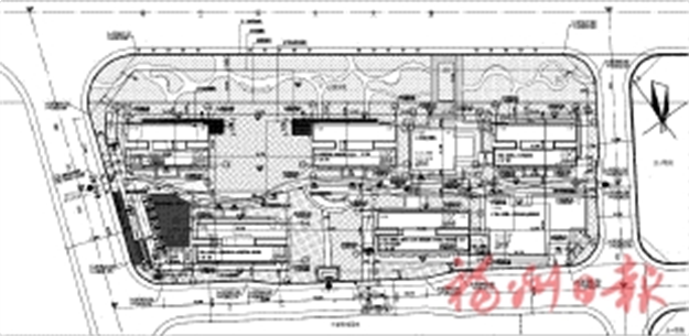
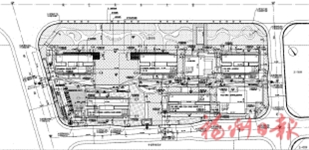
嘉里樟岚(地块五-1)项目位于福州市仓山区南江滨东大道南侧、彭岐一巷东侧,建设单位为盛泰置业(福州)有限公司,于2019年10月核发《建设工程规划许可证》。现建设单位申请在各项规划指标满足规范要求的前提下更正总平图中标注,具体如下(以最后审批为准):
原批总平图中标注在1-4#楼首层的垃圾集散间,按实际审批情况,标注在1-5#楼首层上。现对建筑总平面图此部分内容进行更正,其余内容均无调整,不涉及规划指标变化(具体内容详见附件)。
现根据《福建省实施〈中华人民共和国城乡规划法〉办法》规定,征求利害关系人意见,详情可查阅市自然资源和规划局网站(http://zygh.fuzhou.gov.cn),公示时间为2021年8月31日至2021年9月8日。
在公示期限内,利害关系人若有意见,可来电或来信向我局行政审批处反映(联系电话:87111956,地址:市行政服务中心二楼)。如要申请听证,应在公示期限内书面向我局法规处提出申请(联系电话:83310951)。自然资源和规划局办公地点:福州市仓山区南江滨西大道193号4号楼5层福州市自然资源和规划局,邮编:350500。
附注:
1.附图仅为示意图,以最后审批为准。
2.书面反馈意见(申请)发表时间或邮戳日不应超过公示期的最后一天24:00,逾期视为无效意见(申请)。
3.书面意见(申请)应注明真实联系人姓名、联系电话、联系地址。
附件1:嘉里樟岚项目(地块五-1)原批总平面图
附件2:嘉里樟岚项目(地块五-1)拟调整总平面图
福州市自然资源和规划局
2021年8月30日
附件1:嘉里樟岚项目(地块五-1)原批总平面图
附件2:嘉里樟岚项目(地块五-1)拟调整总平面图










闽公网安备 35020302035470号
最新评论