厦门地产情报站
关注
每日及时推送厦门人居楼市、新闻资讯、市场动态、为购房者提供服务和参考!
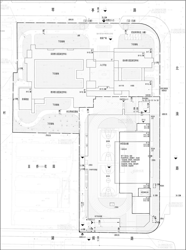
近日,市自然资源和规划局公示了福州屏东中学屏北分校和福州市体育运动学校改扩建项目总平面规划拟调整方案。
福州屏东中学屏北分校位于鼓楼区福飞南路东侧、琴亭路南侧。福州屏东中学提出,为缓解屏北分校对口小学生源增加带来教室及实验室等功能用房不足问题,拟在地块东南侧新建一栋体艺综合楼。
福州市体育运动学校位于仓山区上三路北侧。学校申请调整地块南侧出入口宽度,由原25米调整为22米,并向西平移约12米;地块北侧增设6米出入口。
09月18日
12月03日


【扫一扫关注】


【扫一扫关注】


【扫一扫关注】
最新评论